Beschrijving
Te koop: Unieke bouwkavel met vergunning voor vrijstaande villa aan het water – Vijfhuizerdijk, Vijfhuizen
Droom je van een vrijstaande villa aan het water, met eigen aanlegsteiger en alles al tot in de puntjes voorbereid? Dan is dit jouw kans! Aan de Vijfhuizerdijk in het charmante dorp Vijfhuizen ligt deze exclusieve bouwkavel van 329 m², volledig op eigen grond, met een aanlegsteiger van 33 m² – de perfecte plek om jouw droomwoning te realiseren.
De bouwvergunning is reeds afgegeven en onherroepelijk, waardoor je direct kunt starten met bouwen. De kavel is bouwrijp, geëgaliseerd en voorzien van een keerwand aan de achterzijde.
Belangrijkste kenmerken
Bouwkavel van 329 m² eigen grond
Inclusief aanlegsteiger van 33 m² met vrij uitzicht over het water
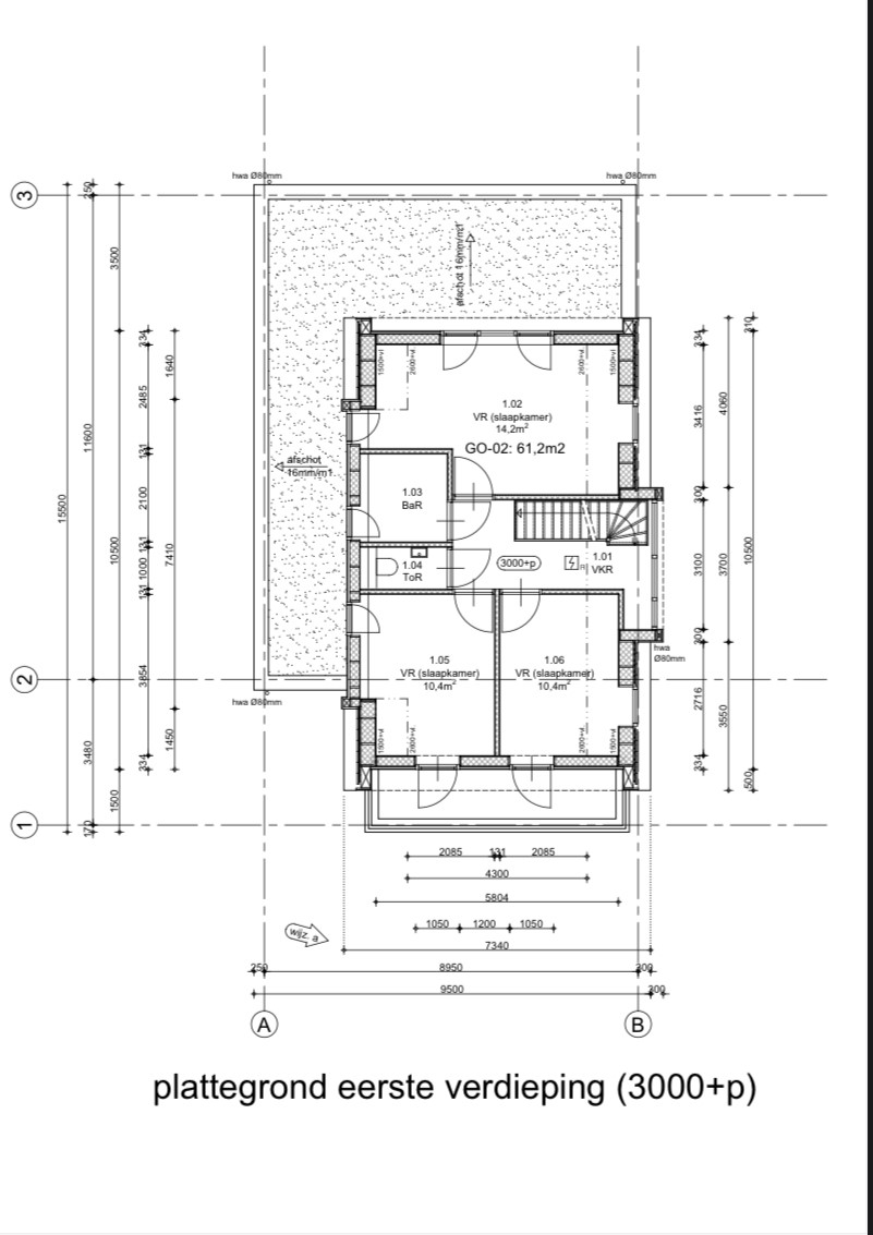
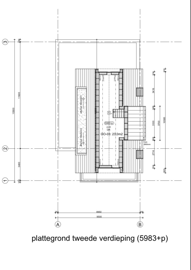
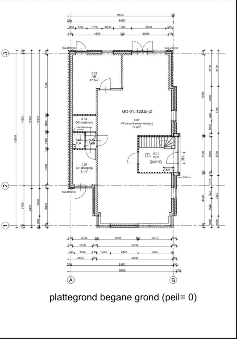
Onherroepelijke bouwvergunning voor een vrijstaande villa (ca. 204 m² woonoppervlakte / 778 m³ inhoud)
Prijs: € 600.000,- k.k. – betreft alleen de kavel
Bouwrijp en geëgaliseerd – direct starten met bouwen
Keerwand geplaatst aan de achterzijde
Busmelding gedaan
Tuin rondom en schutting is reeds geplaatst
Volledig eigen grond – geen erfpacht
Woningontwerp
Er is reeds een omgevingsvergunning verleend voor een vrijstaande villa, maar de indeling kan geheel naar eigen wens worden bepaald.
Dit biedt de ideale balans tussen vrijheid en gemak: alle voorbereidingen zijn getroffen, terwijl je de woning volledig kunt aanpassen aan jouw woonstijl en behoeften.
De locatie – Vijfhuizen
Vijfhuizen biedt het beste van twee werelden: rustig dorps wonen met een centrale ligging ten opzichte van de Randstad.
Bereikbaarheid: Haarlem, Hoofddorp en Amsterdam liggen op slechts 10 tot 15 minuten rijden. De R-Net buslijn rijdt 24 uur per dag richting Haarlem, Hoofddorp, Schiphol en Amsterdam.
Recreatie: het Haarlemmermeerse Bos en de Haarlemmermeersche Golfclub liggen op een steenworp afstand – ideaal voor wandelen, fietsen, golfen of ontspannen aan het water.
Voorzieningen: in het dorp vind je een basisschool, peuterspeelzaal en diverse kinderdagverblijven. Daarnaast kent Vijfhuizen een levendig verenigingsleven met sportclubs en lokale evenementen.
Waarom dit jouw unieke kans is
Bouw jouw vrijstaande villa aan het water
Tuin rondom met aanlegsteiger
Volledig bouwrijp – start direct met bouwen
Vergunning onherroepelijk en klaar voor uitvoering
Centrale ligging met uitstekende bereikbaarheid
Een zeldzame kans: bouw jouw eigen vrijstaande villa aan het water in Vijfhuizen – waar ruimte, rust en luxe samenkomen.