Beschrijving
Te koop: Vrijstaande Villa met Garage en eigen oprit in Hoofddorp – Groen, Ruimte & Duurzaamheid
Stap binnen in deze prachtige vrijstaande villa in het geliefde Sportdorp, Floriande, en laat u betoveren door de ruimte, het licht en de warmte die deze woning uitstraalt. Met een royaal woonoppervlak van 197 m² en een perceel van 442 m² biedt deze woning alles wat u zich kunt wensen: een perfecte combinatie van comfort, duurzaamheid en een groene, kindvriendelijke omgeving.
De villa, gebouwd in 2005 en uitstekend onderhouden door de eerste eigenaren, verwelkomt u met een imposante entreehal met een plafondhoogte van maar liefst 5,5 meter – een echte blikvanger. De begane grond is royaal en licht opgezet, met een sfeervolle woonkamer / eetkamer waar de openslaande deuren naar de zonnige tuin direct het buitenleven naar binnen halen. De woonkeuken, gelegen aan de voorzijde van de woning, geniet dankzij de hoekramen van veel daglicht en is voorzien van alle benodigde inbouwapparatuur. Overal op de begane grond ligt comfortabele vloerverwarming, wat zorgt voor een aangename en energiezuinige basis.
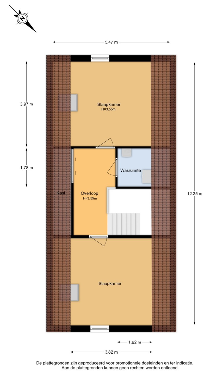
Op de eerste verdieping bevinden zich twee zeer ruime slaapkamers en een royale badkamer die is ingericht met een dubbele wastafel, een douche en een groot ligbad – een heerlijke plek om tot rust te komen. Een separaat toilet op deze verdieping biedt extra gemak. Op de tweede verdieping vindt u nog eens twee ruime slaapkamers en een praktische technische ruimte met aansluitingen voor de wasmachine en droger, evenals de cv-installatie en de omvormer voor de 14 zonnepanelen die in 2013 zijn geplaatst.
De tuin, gelegen op het zuidwesten, is een waar paradijs. Met zorg en uitstekend onderhouden, biedt deze buitenruimte volop zon en privacy. Dankzij de houten overkapping kunt u hier het hele jaar door genieten, zelfs op dagen dat het weer wat minder meewerkt. Tevens is er over bijna de volledige breedte een elektrisch zonnescherm. De tuin heeft daarnaast ook nog een prettige achterom via de zijkant van de woning.
Met een heerlijke eigen oprit , gelegen aan het einde van het hofje, met de mogelijkheid voor 4 eigen parkeerplaatsen, een ruime eigen garage maakt dit de woning perfect om heerlijk onbezorgd te kunnen gaan wonen.
De ligging van deze villa is ronduit perfect. U woont hier in een levendige, groene en kindvriendelijke buurt, omringd door sportvelden en sportcomplexen. Voor uw dagelijkse boodschappen en uitgebreid winkelen kunt u terecht in het nabijgelegen Winkelcentrum Floriande, dat op loop- of fietsafstand ligt. Daarnaast zijn er in de directe omgeving diverse scholen, kinderopvanglocaties en medische voorzieningen. Ook natuurliefhebbers komen hier aan hun trekken, met de Toolenburgerplas en het Haarlemmermeerse Bos op korte afstand. Dankzij de gunstige ligging ten opzichte van uitvalswegen bent u bovendien snel in Amsterdam, Haarlem of op Schiphol, en ook met het openbaar vervoer zijn omliggende steden en dorpen eenvoudig bereikbaar.
Bent u benieuwd of dit uw nieuwe droomwoning kan zijn? Maak vandaag nog een afspraak voor een vrijblijvende bezichtiging. Wij staan voor u klaar, ook buiten kantooruren, om u persoonlijk rond te leiden en al uw vragen te beantwoorden. Ontdek hoe deze prachtige villa perfect kan aansluiten bij uw woonwensen en ervaar zelf het woongeluk dat deze plek te bieden heeft!