Beschrijving
Te koop: Ruime gezinswoning in Floriande – Fanny Blankers Koenlaan 95,
Hoofddorp
English text below
Ben je op zoek naar een ruime, energiezuinige en perfect gelegen gezinswoning? Dan is deze
prachtige tussenwoning in de geliefde wijk Floriande precies wat je zoekt! Met maar
liefst 143 m² woonoppervlakte, 6 slaapkamers, een zonnige tuin én een energielabel A+,
combineert deze woning comfort met duurzaamheid.
Gelegen aan een doodlopende straat, aan een groen plantsoen en gratis en vrij parkeren voor de deur.
De belangrijkste kenmerken op een rij:
Woonoppervlakte: 143 m²
Perceel met voor- en achtertuin (achtertuin op het zuidwesten met een schuur)
Bouwjaar 2006 – modern en degelijk gebouwd
Maar liefst 6 slaapkamers, verdeeld over 3 woonlagen
Energielabel A+ met 11 zonnepanelen
Schuur en aanbouw zijn voorzien van groene sedum dakbedekking
Sfeervolle erker aan de voorzijde voor extra licht en ruimte
Gelegen in de kindvriendelijke wijk Floriande, vlak bij de Toolenburgerplas
Indeling van de woning
Begane grond:
Via de verzorgde voortuin kom je binnen in een lichte hal met garderobe en toilet. De royale
woonkamer heeft openslaande deuren naar de zonnige achtertuin. Dankzij de ligging op het
zuidwesten geniet je hier de hele dag van de zon. De lichte open keuken met een glazen erker
aan de voorzijde is een heerlijke plek voor kookliefhebbers en voor gezellig samenzijn.
De gehele begane grondvloer is voorzien van een houten vloer.
Eerste verdieping:
Op deze verdieping bevinden zich drie ruime slaapkamers en een moderne badkamer. De
ruime slaapkamer aan de voorzijde is voorzien van een lichte en glazen erker, heerlijk om hier
bijvoorbeeld heerlijk een boek te kunnen lezen. De badkamer is voorzien van een
douche/ligbad combinatie, een dubbele wastafel en een tweede toilet.
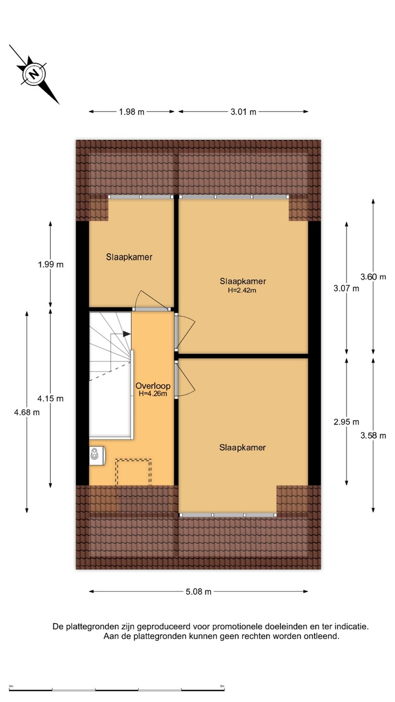
Tweede verdieping:
De zolderverdieping verrast met nog eens drie slaapkamers, ideaal voor een groot gezin, een
thuiskantoor of hobbyruimte. Op de overloop bevinden zich ook de aansluitingen voor
wasmachine en droger en de technische installaties zoals de CV ketel en de mechanische
ventilatie.
Tuin:
De achtertuin is gelegen op het zuidwesten en biedt volop privacy en zon. Dankzij de gunstige
ligging kun je hier optimaal genieten van lange zomerdagen. De tuin is via een achterom
bereikbaar en beschikt over een praktische schuur. Aan de voorzijde is de nette voortuin met
een leuke ligging aan een plantsoen.
De omgeving – Floriande
De woning ligt in de populaire en familievriendelijke wijk Floriande. Alle voorzieningen
zijn binnen handbereik: scholen, kinderopvang, sportverenigingen en winkelcentrum
Floriande. Voor ontspanning wandel of fiets je zo naar de Toolenburgerplas, waar je kunt
recreëren aan het water en/of een heerlijk wandeling.
Daarnaast zijn de uitvalswegen richting Amsterdam, Haarlem en Schiphol uitstekend
bereikbaar, net als openbaar vervoer.
Waarom deze woning?
Ruimte voor het hele gezin met 6 slaapkamers
Energiezuinig (A+ label + 11 zonnepanelen)
Zonnige achtertuin op het zuidwesten
Centrale ligging in geliefde woonwijk Floriande
Vrij en openbaar parkeren
Maak snel een afspraak voor een bezichtiging en ontdek zelf waarom deze woning
perfect bij jou past!
For Sale: Spacious Family Home in Floriande – Fanny Blankers Koenlaan 95, Hoofddorp
Are you looking for a spacious, energy-efficient, and perfectly located family home? Then this beautiful terraced house in the sought-after Floriande neighborhood is exactly what you need! With an impressive 143 m² of living space, 6 bedrooms, a sunny garden, and an A+ energy label, this home combines comfort with sustainability.
Located on a quiet dead-end street, overlooking a green park area, with free public parking right in front of the house.
Key features at a glance:
Living space: 143 m²
Plot with front and back garden (rear garden facing southwest, with shed)
Built in 2006 – modern and solid construction
No fewer than 6 bedrooms, spread across 3 floors
Energy label A+ with 11 solar panels
Shed and extension feature green sedum roof covering
Attractive bay window at the front for extra light and space
Located in the family-friendly Floriande neighborhood, close to the Toolenburgerplas lake
Layout
Ground floor:
Through the well-maintained front garden you enter a bright hallway with cloakroom and toilet. The spacious living room has French doors opening onto the sunny backyard. Thanks to its southwest orientation, you can enjoy sunshine here all day long. The bright open-plan kitchen with glass bay window at the front is a delightful spot for cooking enthusiasts and social gatherings. The entire ground floor features a wooden floor.
First floor:
This floor offers three spacious bedrooms and a modern bathroom. The large bedroom at the front has a light-filled glass bay window – a perfect spot to relax with a book. The bathroom is fitted with a bath/shower combination, double washbasin, and a second toilet.
Second floor (attic):
The top floor surprises with another three bedrooms – ideal for a large family, home office, or hobby space. The landing also houses the laundry connections and technical installations such as the central heating boiler and mechanical ventilation system.
Garden:
The southwest-facing backyard offers plenty of privacy and sunshine – perfect for enjoying long summer days. It can be accessed via a back entrance and includes a practical shed. At the front, a neat front garden enjoys a pleasant location facing a green park area.
The neighborhood – Floriande
This home is located in the popular and family-friendly Floriande district. All amenities are within easy reach: schools, daycare, sports facilities, and the Floriande shopping center. For relaxation, you can walk or cycle to the Toolenburgerplas, a recreational lake perfect for water activities or a pleasant stroll.
In addition, major roads to Amsterdam, Haarlem, and Schiphol are easily accessible, as is public transport.
Why choose this home?
Space for the whole family with 6 bedrooms
Energy-efficient (A+ label + 11 solar panels)
Sunny southwest-facing garden
Central location in popular Floriande neighborhood
Free public parking in front of the house
Schedule a viewing today and discover for yourself why this home is the perfect fit for you!