Beschrijving
Te koop: Volledig gerenoveerde eengezinswoning – Merwedestraat 5, Haarlem
Ben je op zoek naar een instapklare woning waar je zo in kunt trekken? Deze moderne eengezinswoning in de geliefde Rivierenbuurt van Haarlem heeft alles: ruimte, comfort, duurzaamheid en een centrale ligging. Verdeeld over drie woonlagen, met maar liefst 5 slaapkamers, een energielabel A, 8 zonnepanelen, én een aanbouw en opbouw uit 2021, is dit het perfecte huis voor gezinnen die toekomstbestendig willen wonen.
Belangrijkste kenmerken
Woonoppervlakte verdeeld over 3 verdiepingen
5 ruime slaapkamers
Aanbouw & opbouw (2021) – meer leefruimte en modern wooncomfort
Nieuwe keuken met eiland en toegang tot de tuin
Moderne badkamer (2019)
Energielabel A – met o.a. 8 zonnepanelen, 2 airco’s op de bovenverdieping, schuimbetonvloer, vloerverwarming op de begane grond
Cv-installatie uit 2021
Gelegen in de gewilde en kindvriendelijke Rivierenbuurt
Indeling
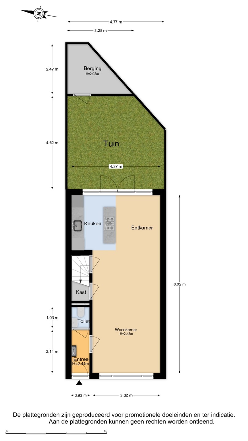
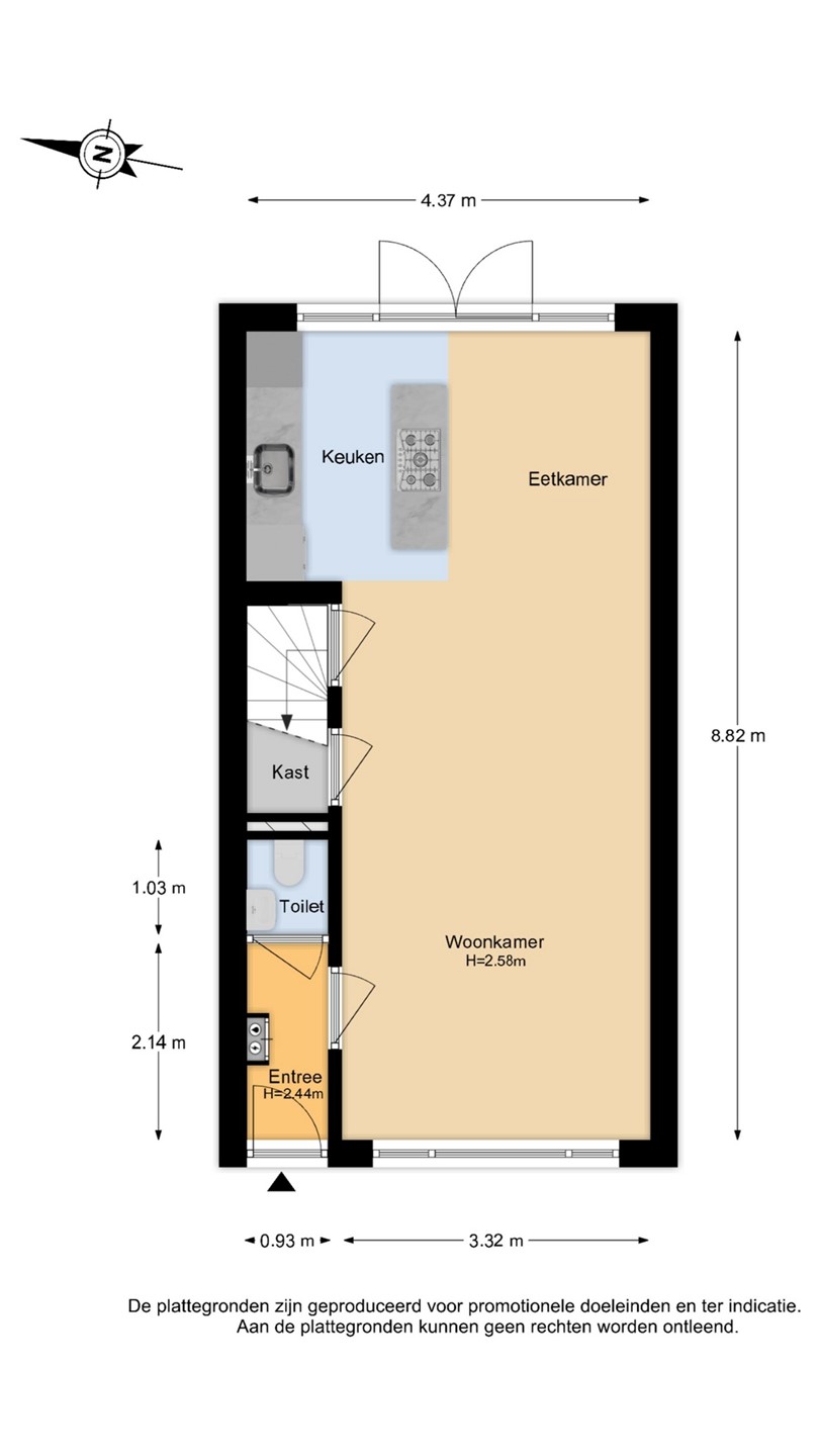
Begane grond
Via de entree met meterkast en modern toilet bereik je de lichte en ruime woonkamer. Aan de achterzijde bevindt zich de fraaie aanbouw met een moderne open keuken met eiland, voorzien van diverse inbouwapparatuur. Vanuit hier heb je toegang tot de verzorgde tuin met schuur en achterom.
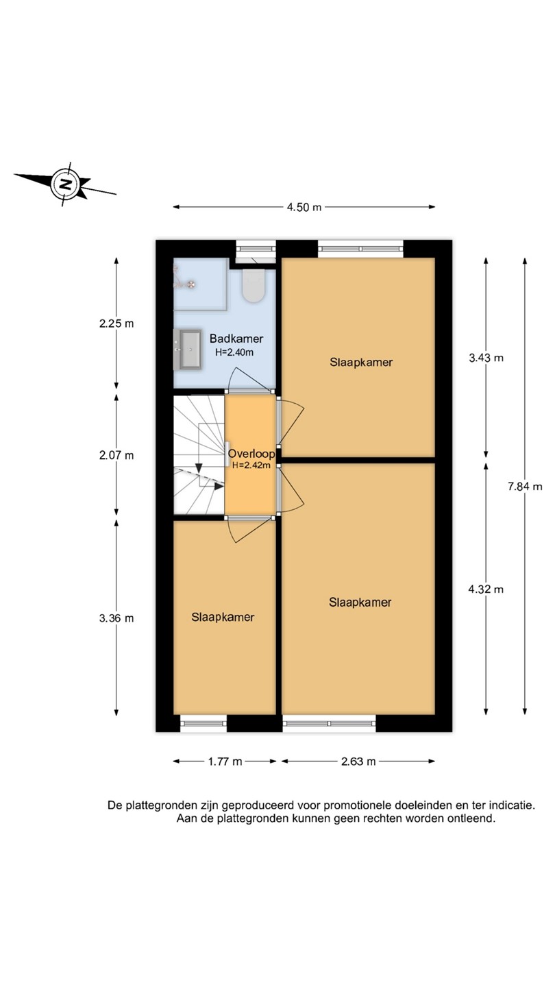
Eerste verdieping
De overloop biedt toegang tot drie ruime slaapkamers en de moderne badkamer (2019), uitgerust met douche, wastafelmeubel en tweede toilet.
Tweede verdieping
Dankzij de opbouw uit 2021 zijn hier twee royale slaapkamers met airco gerealiseerd en een praktische wasruimte met cv-opstelling (2021).
Tuin
De achtertuin is een heerlijke plek om te ontspannen en beschikt over een schuur en achterom.
De buurt – Rivierenbuurt Haarlem
De Rivierenbuurt is een geliefde en kindvriendelijke woonwijk in Haarlem. Rustig en groen, maar toch dichtbij alle voorzieningen:
Winkels & horeca: buurtwinkels, supermarkten en gezellige cafés/restaurants op loop- en fietsafstand.
Scholen & opvang: diverse basisscholen en kinderopvang in de wijk, middelbare scholen in de nabije omgeving.
Sport & recreatie: sportverenigingen, speeltuinen en het groene park Schoterbos liggen om de hoek.
Uitvalswegen & OV: binnen enkele minuten bereik je de A9 en A200 richting Amsterdam, Schiphol en het strand en de duinen. Het NS-station Haarlem ligt op fietsafstand en meerdere busverbindingen zijn dichtbij.
Waarom dit jouw nieuwe thuis wordt
Duurzaam, energiezuinig en toekomstbestendig (A-label, zonnepanelen, nieuwe installaties)
Maar liefst 5 slaapkamers – volop ruimte voor gezin, thuiswerken of hobby’s
Volledig gerenoveerd, instapklaar en voorzien van aanbouw & opbouw
Centrale ligging in een geliefde buurt met alle voorzieningen in de directe omgeving
Plan snel een bezichtiging en ervaar zelf het wooncomfort van deze prachtige woning in Haarlem!
For Sale: Fully Renovated Family Home – Merwedestraat 5, Haarlem
Looking for a move-in ready home where all the work has already been done? This modern family home in the sought-after Rivierenbuurt neighborhood of Haarlem truly has it all: space, comfort, sustainability, and a central location. Spread over three floors, with 5 bedrooms, an A energy label, 8 solar panels, floorheating and both an extension and roof addition (2021), this is the perfect house for families who want to live comfortably and future-proof.
Key features
Living space across 3 floors
5 spacious bedrooms
Extension & roof addition (2021) – extra space and modern comfort
New kitchen with island and direct access to the garden
Modern bathroom (2019)
Energy label A – incl. 8 solar panels, 2 airco’s at the top floor, insulated concrete floor with underfloor heating.
Central heating system from 2021
Located in the popular and family-friendly Rivierenbuurt
Layout
Ground floor
Entrance with meter cupboard and modern toilet, leading into a bright and spacious living room. At the rear, the stylish extension houses a modern open kitchen with island, fully equipped with built-in appliances. From here, you step into the well-kept garden with shed and back entrance.
First floor
Landing with access to three generous bedrooms and the modern bathroom (2019), featuring a shower, washbasin cabinet, and second toilet.
Second floor
Thanks to the roof addition completed in 2021, this floor now offers two large bedrooms with airco and a practical laundry room with central heating system (2021).
Garden
The backyard is a wonderful spot to relax and comes with a shed and back entrance.
The neighborhood – Rivierenbuurt Haarlem
The Rivierenbuurt is a beloved and family-friendly neighborhood in Haarlem. Quiet and green, yet close to all conveniences:
Shops & dining: local shops, supermarkets, and cozy cafés/restaurants within walking and cycling distance.
Schools & childcare: several primary schools and childcare options nearby, with secondary schools also within easy reach.
Sports & recreation: sports clubs, playgrounds, and the green Schoterbos just around the corner.
Transport & accessibility: within minutes you’re on the A9 or A200 towards Amsterdam, Schiphol, and the coast. Haarlem train station is a short bike ride away, and multiple bus connections are nearby.
Why this is your new home
Sustainable, energy-efficient, and future-proof (A label, solar panels, new installations)
No fewer than 5 bedrooms – plenty of space for family, home office, or hobbies
High-quality renovation, move-in ready, with extension & roof addition
Central location in a popular neighborhood with all facilities nearby
Schedule a viewing today and experience the comfort of this beautiful Haarlem home for yourself!