Beschrijving
Te koop: Licht en ruim 3-kamerappartement met zonnig balkon op het zuiden – Van Nijenrodeweg 778, Amsterdam (Buitenveldert).
English text below
Op zoek naar een comfortabel en licht appartement met vrij uitzicht, gelegen op een toplocatie in Amsterdam-Buitenveldert en nabij Amsterdam Zuid. Dit ruime 3-kamerappartement op de 5e verdieping aan de Van Nijenrodeweg in Buitenveldert biedt alles wat je zoekt: een zonnig balkon op het zuiden, een actieve VvE, energielabel C, en een ligging die perfect is voor wie rustig wil wonen met de stad binnen handbereik.
Belangrijkste kenmerken
Woonoppervlakte: 86 m²
Gelegen op de 5e verdieping
Zonnig balkon op het zuiden met groen uitzicht
Energielabel C
Actieve VvE met maandelijkse servicekosten van € 240,-
Erfpachtcanon € 100,- per jaar (tot 2036)
Privéberging op de begane grond
Vrij uitzicht, veel lichtinval
Centrale ligging nabij Zuidas, WTC en Amsterdamse Bos
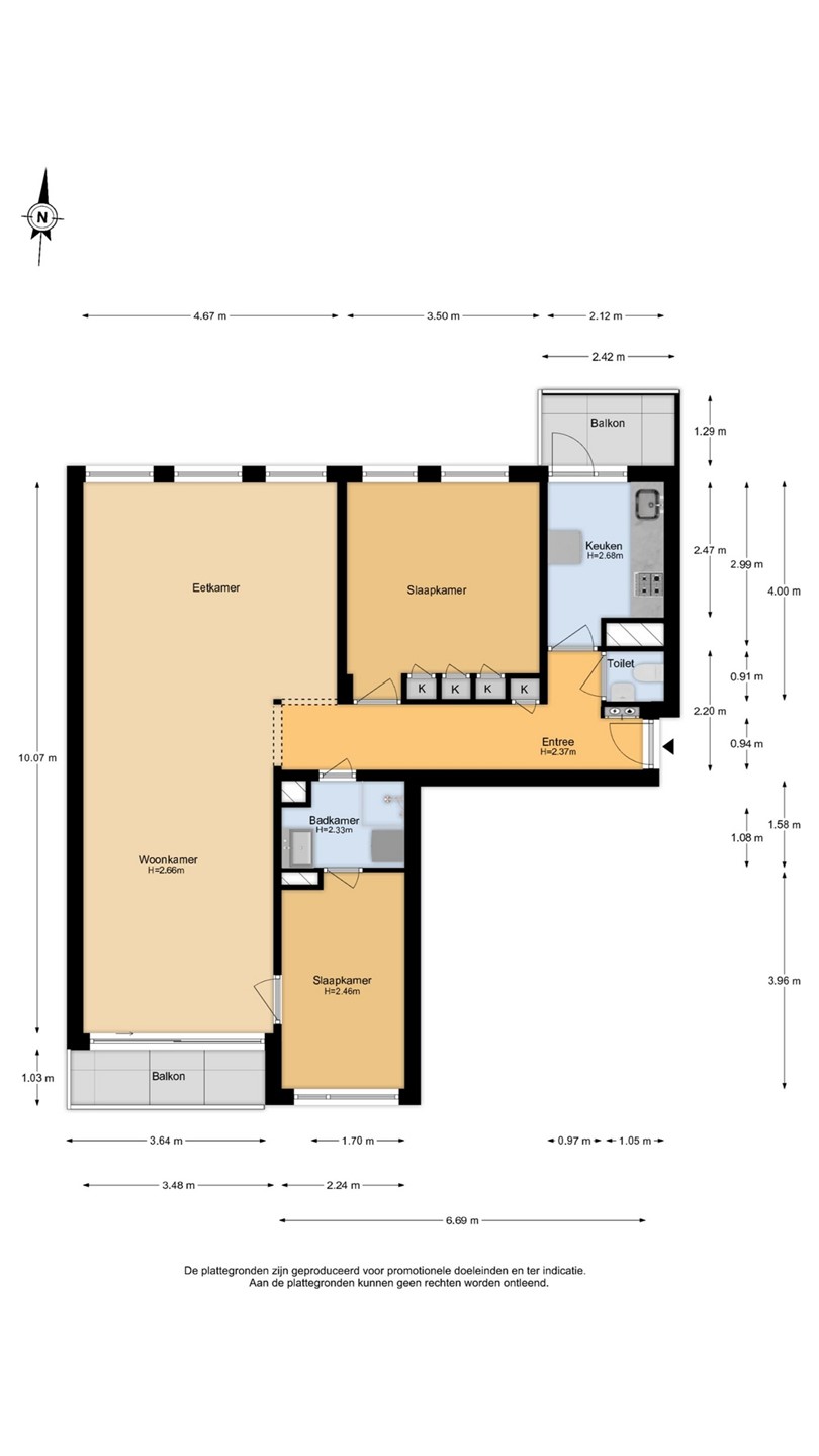
Indeling
Via de gemeenschappelijke entree met lift bereik je de vijfde verdieping.
De hal biedt toegang tot alle vertrekken. De lichte doorzon woonkamer strekt zich uit over de volledige diepte van het appartement en heeft aan twee zijden grote raampartijen, waardoor de ruimte heerlijk licht is. Vanuit de woonkamer stap je via een schuifpui het zonnige balkon op het zuiden op – de ideale plek om te ontspannen en te genieten van het vrije uitzicht over groen.
De keuken is eenvoudig maar netjes en bevindt zich separaat aan de galerijzijde. Verder is er een apart toilet, een nette badkamer met douchecabine en wastafel, en twee goed bemeten slaapkamers die beiden uitkijken op het groen.
De omgeving – Buitenveldert, Amsterdam-Zuid
De Van Nijenrodeweg ligt in de geliefde wijk Buitenveldert, een rustige en groene woonomgeving tussen de stad en het Amsterdamse Bos.
Groen & recreatie: op korte afstand van het Amsterdamse Bos, het Amstelpark en diverse sportvoorzieningen.
Winkels & horeca: het winkelcentrum Gelderlandplein ligt op loopafstand en biedt een uitgebreid aanbod aan winkels, supermarkten en restaurants.
Bereikbaarheid: uitstekende ligging nabij de Zuidas, WTC, A10, en station Zuid. Er zijn directe verbindingen naar Schiphol, Amstelveen en het centrum van Amsterdam.
Voorzieningen: scholen, medische zorg en openbaar vervoer bevinden zich in de directe omgeving.
Waarom dit jouw nieuwe thuis kan zijn
Lichte en ruime doorzonwoning met balkon op het zuiden
Gelegen in een rustige, groene omgeving nabij Zuidas en Amsterdamse Bos
Actieve VvE en goed onderhouden complex
Betaalbare erfpachtcanon (€100/jaar tot 2036)
Plan snel een bezichtiging en ervaar zelf het comfort, de rust en de gunstige ligging van dit fijne appartement in Buitenveldert!
For Sale: Bright and Spacious 2-Bedroom Apartment with Sunny South-Facing Balcony – Van Nijenrodeweg 778, Amsterdam (Buitenveldert)
Looking for a bright and comfortable apartment in one of Amsterdam’s most sought-after residential areas? This well-laid-out 3-room apartment on the 5th floor of the Van Nijenrodeweg complex offers a perfect balance of space, light, and location. With a sunny south-facing balcony, Energy Label C, and an active homeowners’ association (VvE), this apartment is ideal for those who want to live close to the Zuidas, WTC, and Amsterdamse Bos while enjoying a peaceful, green environment.
Key Features
Living area: 86 m²
Located on the 5th floor with unobstructed views
Sunny south-facing balcony overlooking greenery
Energy Label C
Active VvE with monthly contribution of €240
Annual ground lease (erfpacht) of €100 (until 2036)
Private storage room on the ground floor
Abundant natural light from two sides
Excellent location near Zuidas, WTC, and Amsterdamse Bos
Layout
The communal entrance with elevator takes you to the fifth floor.
Upon entering the apartment, you are welcomed by a spacious hallway providing access to all rooms. The bright living and dining room extends across the entire depth of the apartment, offering large windows on both sides for maximum daylight. A sliding door opens onto the sunny south-facing balcony, the perfect spot to relax and enjoy the green surroundings.
The kitchen is separate, simple yet well maintained, and includes ample storage. The apartment also features a separate toilet, a neat bathroom with shower and washbasin, and two spacious bedrooms, both with green views.
The Neighborhood – Buitenveldert, Amsterdam-Zuid
Located in the popular Buitenveldert district, this apartment combines tranquil, green living with excellent accessibility to all parts of the city.
Green & recreation: close to the Amsterdamse Bos, Amstelpark, and various sports facilities.
Shops & dining: the Gelderlandplein shopping center is within walking distance, offering a wide range of shops, supermarkets, and restaurants.
Accessibility: superb connections to Zuidas, WTC, A10 ring road, and Station Zuid. Public transport provides direct access to Schiphol Airport, Amstelveen, and Amsterdam city center.
Facilities: schools, medical services, and public transport are all conveniently nearby.
Why This Could Be Your New Home
Bright, spacious apartment with sunny balcony
Located in a quiet, green neighborhood near Zuidas and Amsterdamse Bos
Well-maintained complex with active VvE
Affordable ground lease (€100/year until 2036)
Ideal for starters, expats, or as a pied-à-terre
Schedule a viewing today and discover the comfort, tranquility, and excellent location of this lovely apartment in Buitenveldert!