Beschrijving
Luxury loft apartment for rent in the center of Haarlem with roof terrace.
Fully furnished
Very atmospheric!
This beautiful, super modern and renovated in 2021 is located in a fantastic and central location of Haarlem center. Within walking distance of all nice restaurants, the station, the nice shops and nightlife.
It is located on the top 2 floors of the property.
The 2nd floor with luxury kitchen, beautiful herringbone oak wooden floor and a fully open sliding door with access to the roof terrace has been completely renovated in 2021.
The kitchen is luxurious with a cooking island and is equipped with all desired built-in appliances such as dishwasher, integrated induction hob, oven and microwave.
A lovely living room with a beautiful lounge and access to the sunny and spacious roof terrace of no less than 25m2 located on the southwest.
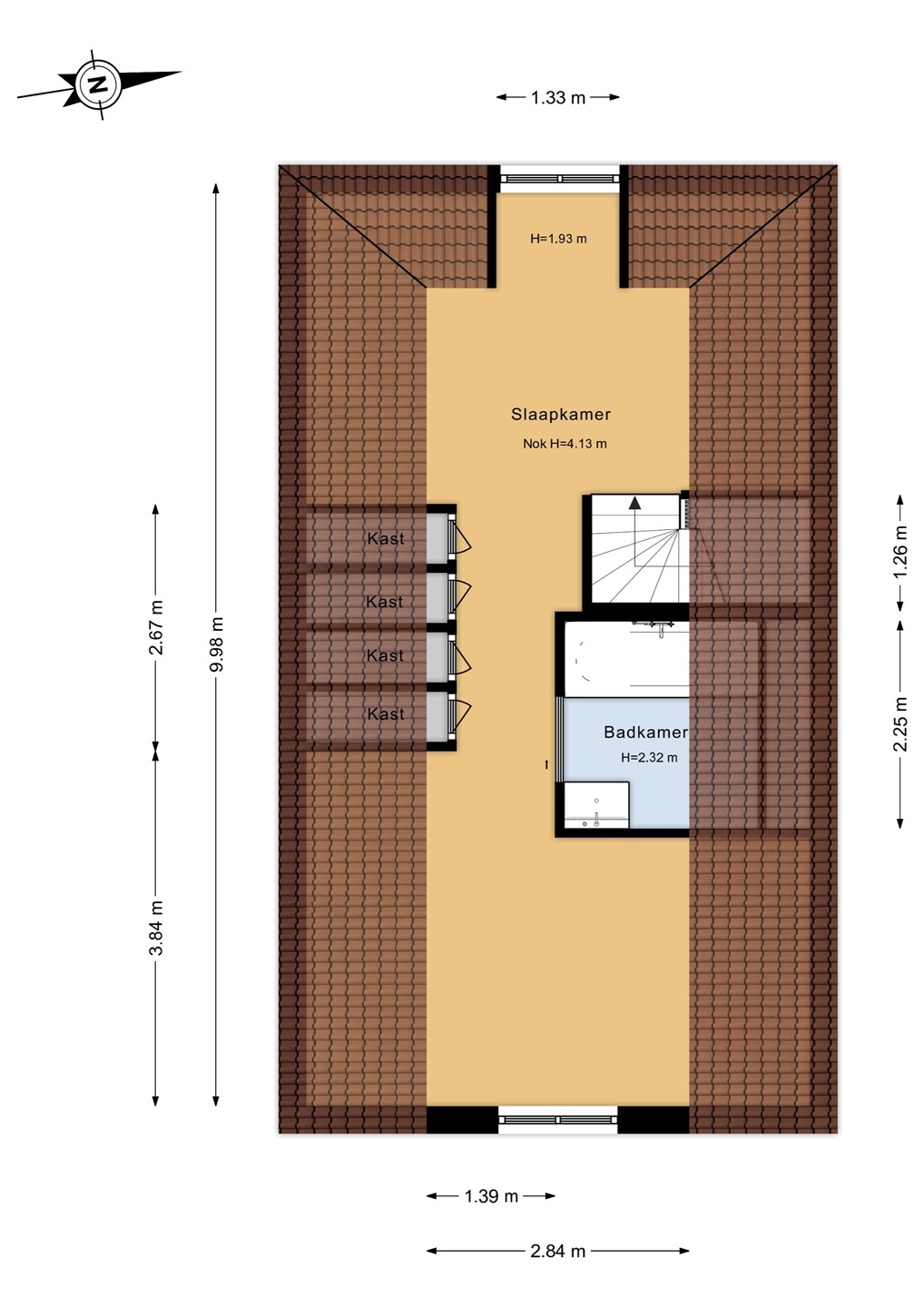
The 2nd floor has a spacious bedroom, fitted wardrobes and a work/study area at the front. Bathroom with sink and bath/shower combination.
The apartment comes fully furnished.
The rent is excluding gas, water and electricity.
Luxe loft appartement te huur in centrum Haarlem met dakterras.
Volledig gemeubileerd.
Zeer sfeervol!
Dit fraaie , super moderne en in 2021 gerenoveerde is gelegen op een fantastische en centrale plek van Haarlem centrum. Op loopafstand van alle leuke restaurants, het station, de leuke winkels en uitgaansgelegenheden.
Het is gelegen op de bovenste 2 verdiepingen van het pand.
De 2e verdieping met luxe keuken, fraaie visgraat gelegde eiken houten vloer en een volledig open te schuiven pui met toegang naar het dakterras is volledig gerenoveerd in 2021.
De keuken is luxe met een kookeiland en is voorzien van alle gewenste inbouwapparatuur zoals vaatwasser, geïntegreerde inductie kookplaat, oven en magnetron.
Een heerlijke living met fraaie lounge en toegang tot het zonnige en riante dakterras van maar liefst 25m2 gelegen op het zuidwesten.
De 2e verdieping is voorzien van een riante slaapkamer, inbouwkasten en een werk/studeer ruimte aan de voorzijde. Badkamer met wastafel en ligbad/douche combinatie.
Het appartement komt volledig gemeubileerd.
De huurprijs is exclusief gas, water en elektra.